
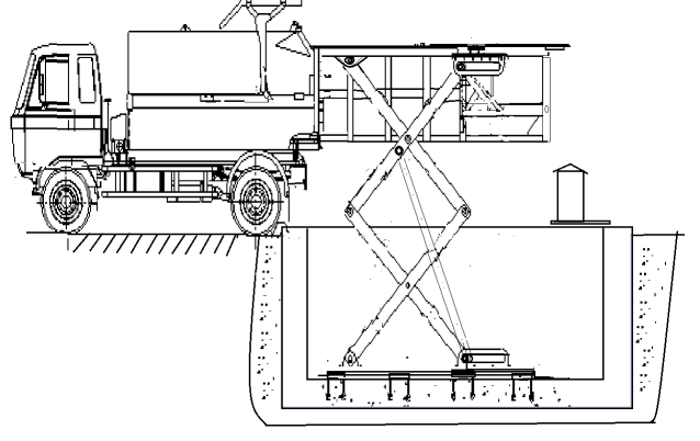
公司研发生产的地埋式压缩垃圾站设备。是一种置于地下的升降式压缩垃圾站,当压缩垃圾站处于地坑内时,通过各种垃圾收集运输车辆或其它途径将松散垃圾倾倒入压缩垃圾站内,由其压缩机构对垃圾进行压缩,经过多次垃圾投放及压缩循环,压满一箱垃圾后(相当于同等三箱垃圾量),由压缩垃圾站的举升机构,将压缩垃圾站升出地面,向垃圾车方向前移600mm-800mm与垃圾转运车辆后箱对接后,打开箱门,通过挤压推板将箱体内的压缩垃圾块转移到运输车辆箱体内,运输车辆离开箱体后关闭箱门,压缩垃圾站回落至地坑内,开始下一轮垃圾收集。全过程只要一人操作即可完成。

适合各种带车箱的垃圾运输车,并适合新密封自卸式垃圾转运车
地埋式垃圾压缩站设备,不仅占地面积少,而且能降低劳动强度,节约转运成本,与常规的垃圾站相比较,一年一台设备仅在运输垃圾费用上至少可节省开支7万余元,节省人工工资5万多元。比传统普通垃圾站在营运费用上具有无法比拟的优势。
根据垃圾箱容积的不同分别有5立方、6立方、8立方、10立方等多种型号的产品供您选择。还可根据用户定制特殊型号,满足用户不同的转运方式需要。
目前生产的这种新垃圾站,密封无异味,清洁环保,适用于环境优美的生活小区、风景区、公园、广场及工厂、机关、学校、商场、市场等场所的垃圾的收集和中转。
序号 | 项目及要求 | 技术参数 |
1 | 装机功率 | 380v 7.5kw /50HZ |
2 | 压缩力 | ≥400kn |
3 | 额定容积 | 5吨≥5 m3 6吨≥6m3 |
4 | 举升结构及方式 | 剪叉式、双层剪叉举升 |
5 | 举升高度 | ≥3.2m |
6 | 垃圾倒入口尺寸 | 1200mmX800mm和1600mmX800mm |
7 | 垃圾箱体尺寸 | 4700*1800*1260 |
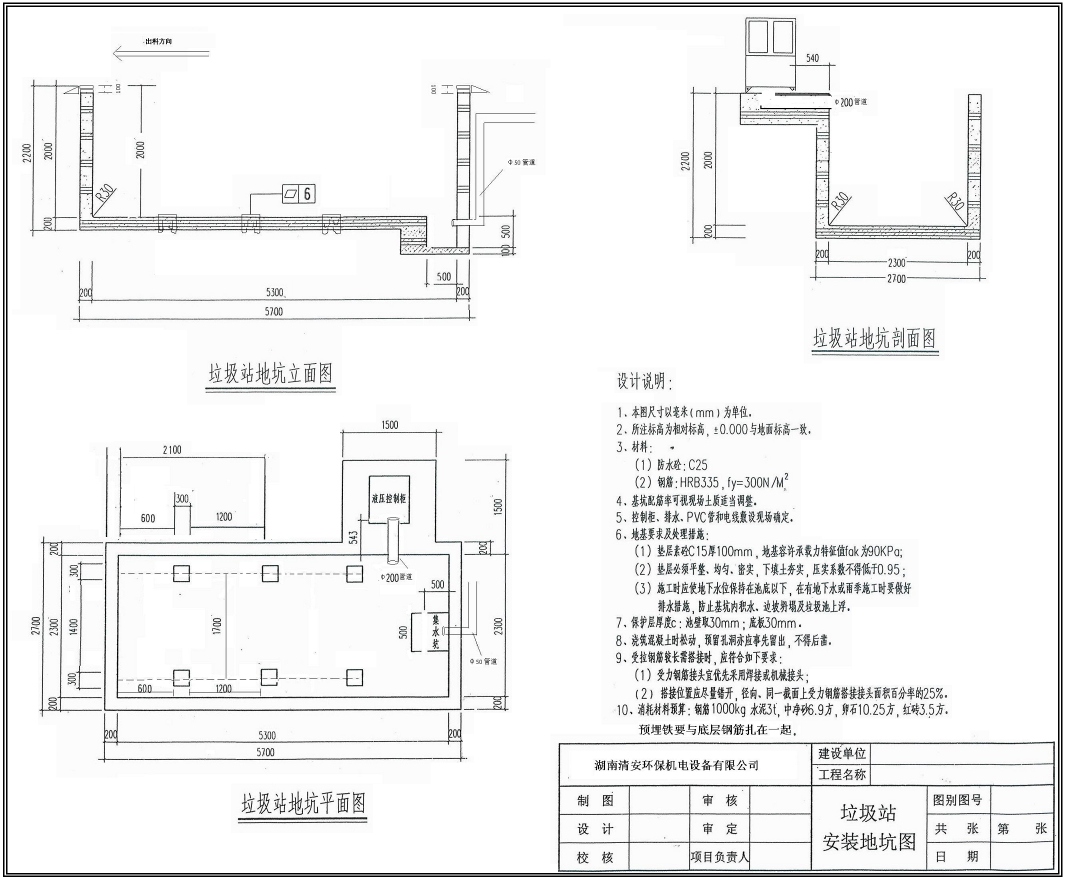
8 | 地坑尺寸(长×宽×高) | 5.20×3.30×1.50(侧升) 5.30×2.30×2.00(底升) |
9 | 举升油缸 | 双作用油缸 |
产品特点:
1、全封闭水平压缩;垃圾破碎、脱水、压缩一次完成,垃圾压实密度≥0.85t/m3 大幅节约转运成本,运输成本是普通垃圾站的三分之一,平稳可靠;采用液压油缸控制升降压缩推挤,省时省力省电。
2、占地小,无须建房;地坑宽度窄的只有2.30米,选址极为灵活,占地面积更省。地坑深度浅的只有1.50米,设备全密封地埋式,清洁、环保无异味,是当前国家积极推广的环保产品。
3、垃圾箱从地坑升出地面能向垃圾车方向前移600-800,更方便垃圾转运,减少第二次污染,更加环保卫生。
设备组件:
1、压缩垃圾箱体(锁门、开门油缸,压缩油缸,压缩推板及轨道)
2、支撑升降系统(举升油缸,双剪刀叉升降系统,平移系统)
3、液压系统(液压站,电子阀,溢流阀,液压锁,压力表,油箱等)
4、电控柜(启动、举升、压缩、锁门、开门、排污等控制)
带前移优点图示说明:
如图所示,这种带前移垃圾站,在垃圾转运过程中,垃圾箱从地坑内上升与垃圾车对接时,能向垃圾车方向前移600mm-800mm,垃圾车的车箱不再倒车到地坑上方了,而是在地面上的垂直高度上,这样垃圾箱深入到垃圾的深度更深,减少了垃圾掉落数量,同时,即使有垃圾掉落,也只是掉落地坑外的地面上,减少了第二次污染,节省了人工。目前,是地埋式垃圾站的新产品,也是各高档小区,商业场所选择垃圾站的较优选择。
售前提供施工设计方案和地坑基础施工图并免费指导施工。









